SKYSCAPE AURA
fra 1 712 492 AED
fra 24 687 AED/Kvadratmeter
Delivery of the object
IV kvartal, 2028
Bruksrom
fra 59 Kvadratmeter
Payment plan
60 / 40
Utbygger
Location
Skyscape Avenue, Sobha Hartland II, Bukadra, Nad Al Sheba 1, Dubai, UAE
Financial Centre
7000m
Emirates Towers
7100m
World Trade Centre
7400m
Direkte kontakt med sikkerhetstjeneste
TV
Internett
Parkering under tak
Spa
Treningsrom
Restaurant og Kafé
Kafé
Features
Beliggenhet
- Nær bussholdeplass
- Sentrumsnært
- Nær skoler
- Område med høy status
- Nær internasjonale skoler
- Sentrum
- Nært t-bane
- Nært restauranter
- Utsikt over byen
- Panoramautsikt
- Vakker utsikt
Funksjoner
- Direkte kontakt med sikkerhetstjeneste
- Alarmsystem
- Balkong
- TV
- Internett
- Sentralt klimaanlegg
- Møblert
- Fullført
- Oppgradert interiør
- Luksusboliger
Innendørs fasiliteter
- Barnehage
- Restaurant og Kafé
- Kafé
- Bar
- Spisested i bygningen
- Lobby i bygningen
- Avslapningsområde
- Spa
- Skjønnhetssalong
- Treningsrom
- Squashbane
- Handlesenter
- Parkering under tak
Utendørs fasiliteter
- Videoovervåkning
- Beskyttelse
- Lekeplass
- Anlagd grøntområde
- Transporttilgjengelighet
- Ingen industriområder
- Sosiale og kommersielle fasiliteter
- Parkering
- Concierge
- Turstier
- Svømmebasseng
- Løpebane
- Tennisbane
- Butikk
- Supermarked
Om prosjektet SKYSCAPE AURA
By
Dubai
Område
Adresse
Skyscape Avenue, Sobha Hartland II, Bukadra, Nad Al Sheba 1, Dubai, UAE
Type
Boligkompleks
Til havet
2 km
From developer
7 eiendommer
From agencies
1 eiendom
Til bysentrum
7 km
Fullføringsdato
IV kvartal 2028
ID
489275
Payment plan
60 / 40
Antall rom
1, 2, 3
Boligareal
Bruksrom59 Kvadratmeter, til 187 Kvadratmeter
- Kvadratmeter
- Kvadratfot
Apartments and flats in SKYSCAPE AURA
Sorter etter
-
Leilighet i Nadd Al Sheba, Dubai, Emiratene 1 soverom, 81 kvm nr. 489284
Antall rom: 2Soverom: 1Bad: 1Bruksrom: 81 KvadratmeterAvstand til havet: 2 km -
Leilighet i Nadd Al Sheba, Dubai, Emiratene 2 soverom, 141 kvm nr. 489286
Antall rom: 3Soverom: 2Bad: 2Bruksrom: 141 KvadratmeterAvstand til havet: 2 km -
Leilighet i Nadd Al Sheba, Dubai, Emiratene 1 soverom, 82 kvm nr. 489283
Antall rom: 2Soverom: 1Bad: 1Bruksrom: 82 KvadratmeterAvstand til havet: 2 km -
Leilighet i Nadd Al Sheba, Dubai, Emiratene 2 soverom, 140 kvm nr. 489287
Antall rom: 3Soverom: 2Bad: 2Bruksrom: 140 KvadratmeterAvstand til havet: 2 km -
Leilighet i Nadd Al Sheba, Dubai, Emiratene 3 soverom, 187 kvm nr. 489289
Antall rom: 4Soverom: 3Bad: 3Bruksrom: 187 KvadratmeterAvstand til havet: 2 km -
Leilighet i Nadd Al Sheba, Dubai, Emiratene 1 soverom, 78 kvm nr. 489285
Antall rom: 2Soverom: 1Bad: 1Bruksrom: 78 KvadratmeterAvstand til havet: 2 km -
Leilighet i Nadd Al Sheba, Dubai, Emiratene 2 soverom, 144 kvm nr. 489288
Antall rom: 3Soverom: 2Bad: 3Bruksrom: 144 KvadratmeterAvstand til havet: 2 km -
Leilighet i Dubai, Emiratene 1 soverom, 59 kvm nr. 532971
Soverom: 1Bruksrom: 59 Kvadratmeter
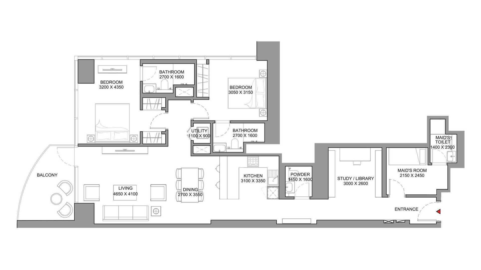
Layouts in SKYSCAPE AURA
Floor plan 1 bedroom, in SKYSCAPE AURA
Boligareal
78.0 Kvadratmeter
Soverom
1
Bad
1
Pris
1 897 290 AED
Number of flats
1
Comparison of parameters and prices in SKYSCAPE AURA
Oppsett
Soverom
Type
Boligareal
Pris

Soverom
1
Type
Leilighet
Boligareal
78.0 Kvadratmeter
Pris
1 897 290 AED

Soverom
1
Type
Leilighet
Boligareal
81.0 Kvadratmeter
Pris
2 041 304 AED

Soverom
1
Type
Leilighet
Boligareal
82.0 Kvadratmeter
Pris
2 065 345 AED

Soverom
2
Type
Leilighet
Boligareal
140.0 Kvadratmeter
Pris
3 779 750 AED

Soverom
2
Type
Leilighet
Boligareal
141.0 Kvadratmeter
Pris
3 785 125 AED

Soverom
2
Type
Leilighet
Boligareal
144.0 Kvadratmeter
Pris
3 794 364 AED

Soverom
3
Type
Leilighet
Boligareal
187.0 Kvadratmeter
Pris
4 920 678 AED
Kart
Airport
8.5 km
City center
7 km
Beach
2 km
Hospital
6 km
Marina
4.6 km
Mall
4.5 km
Colledge
4 km
Museum
6 km
Average price of an objects in the development
Average price per meter
21 852.20 AED
Average price
2 491 151.17 AED
Utbygger Sobha Group

Utbygger Sobha Group
Grunnlagt i
1976
Kontakt med firmaet
Our team will help you choose the perfect property in SKYSCAPE AURA
Lignende tilbud
-
Avstand til havet: 3.5 kmÅr for ferdigstillelse: IV kvartal, 2028, off-plan
Skyscape Altius, Sobha Hartland II, Bukadra, Nad Al Sheba 1, Dubai, UAE -
Avstand til havet: 2 kmÅr for ferdigstillelse: IV kvartal, 2028, off-plan
Skyscape Avenue, Sobha Hartland II, Bukadra, Nad Al Sheba 1, Dubai, UAE -
Utbyggingsprosjekt The Element at Sobha One i Mohammed Bin Rashid City, Dubai, Emiratene nr. 580105UtviklingAvstand til havet: 1 kmÅr for ferdigstillelse: IV kvartal, 2028, off-plan
The Element at Sobha One - Ras Al Khor Industrial Area - Ras Al Khor Industrial Area 1 - Dubai - UAE -
Utbyggingsprosjekt PALACE RESIDENCES i Dubai Creek Harbour (The Lagoons), Dubai, Emiratene nr. 46866UtviklingAvstand til havet: 16.2 kmÅr for ferdigstillelse: IV kvartal, 2022, off-plan
Dubai Creek - Ras Al Khor - Dubai Creek Harbour - Dubai - UAE






















