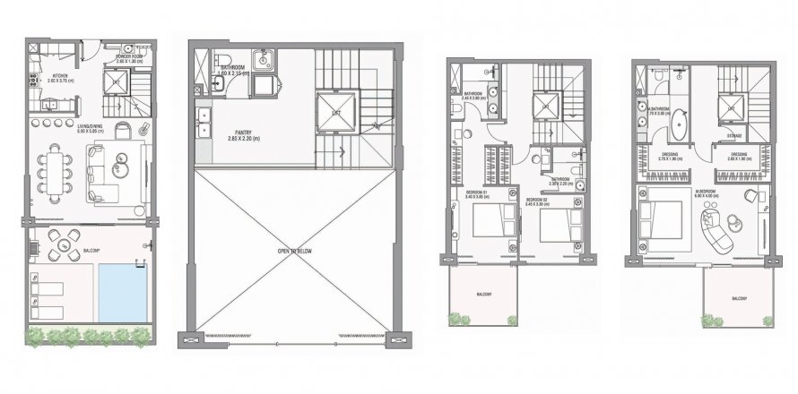
Floor plan in V1stara House 2

2 255 129 AED
- AED
- EUR €
- USD $
- RUB ₽
- GBP £
Apartments with this layout
Šķirot pēc
Sazināties ar pārdevēju
PilsētaDubai
ApvidusAl Furjan
Dzīvojamā platība145.29 m²
- m²
- kvadrātpēdas
Līdz jūrai10 km
Līdz pilsētas centram30 km
Pabeigšanas datumsIII ceturtdaļa, 2027
Cena
- Cena
- par m²
2 255 129 AED
- AED
- EUR €
- USD $
- RUB ₽
- GBP £
Piedāvāt savu cenu