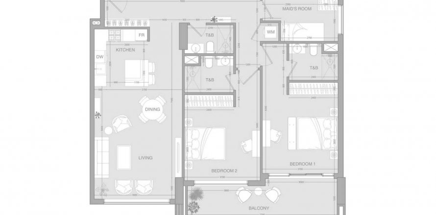
Floor plan «2BR», 2 bedrooms, in VERDAN1A RESIDENCE
947


1 770 302 AED
- AED
- EUR €
- USD $
- RUB ₽
- GBP £
محل
- نزدیک ایستگاه اتوبوس
- نزدیک مراکز خرید
- منطقه معتبر
- منطقه و محیط زیست بکر و تمیز
- موقعیت مکانی عالی
- منظره زیبا
- نمای محله
- نمای بناهای طبیعی
امکانات
- خط مستقیم به نگهبانی
- سیستم هشدار دهنده
- پنجره های پانوراما
- بالکن
- سیستم سرمایش و گرمایش
- آشپزخانه کاملا مجهز
- مبله
- کفپوش
- تمام شده
- فضای دخلی
- پروژه کلاس لوکس
- پروژه جدید
امکانات داخلی
- بار
- مراقبت پزشکی 7/24
- منطقه تفریحی
- باشگاه خصوصی
امکانات فضای باز
- منظره فضای سبز
- فاقد شرکتهای صنعتی
- امکانات اجتماعی و تجاری
Apartments with this layout
مرتب سازی بر اساس
-
اتاق خواب: 2حمام: 2فضای زندگی: 127 m2فاصله از دریا: 12 کیلومتر
تماس با فروشنده
شهرDubai
منطقهDubai Land
تیپآپارتمان
اتاق خواب2
فضای زندگی127.0 m2
- m2
- فوت مربع
به دریا12 کیلومتر
به مرکز شهر16.5 کیلومتر
تاریخ تکمیلII یک چهارم, 2027
قیمت
- قیمت
- قیمت هر متر مربع
1 770 302 AED
- AED
- EUR €
- USD $
- RUB ₽
- GBP £

