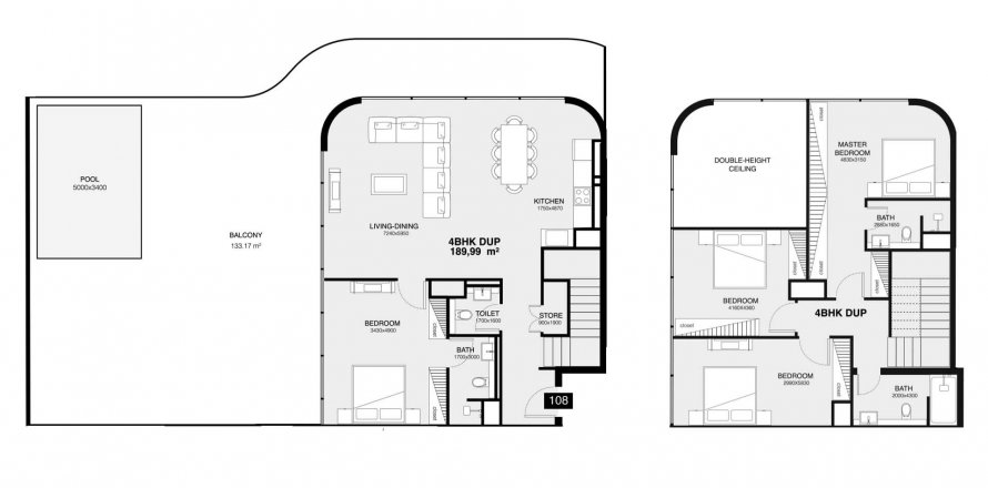
Floor plan «4BR», 4 bedrooms, in Villa Del Gavi
581


12 000 000 AED
- AED
- EUR €
- USD $
- RUB ₽
- GBP £
Apartments with this layout
Pagbukud-bukurin ayon sa
-
Mga silid: 5Mga silid-tulugan: 4Mga banyo: 4Living space: 367.06 m²Distansya sa dagat: 500 m
Makipag-ugnayan sa nagbebenta
LungsodDubai
UriApartment
Mga silid-tulugan4
Living space367.06 m²
- m²
- sq. ft
Sa dagat500 m
Sa sentro ng lungsod15 km
Petsa ng pagkumpletoIV quarter, 2027
Presyo
- Presyo
- bawat m²
12 000 000 AED
- AED
- EUR €
- USD $
- RUB ₽
- GBP £

