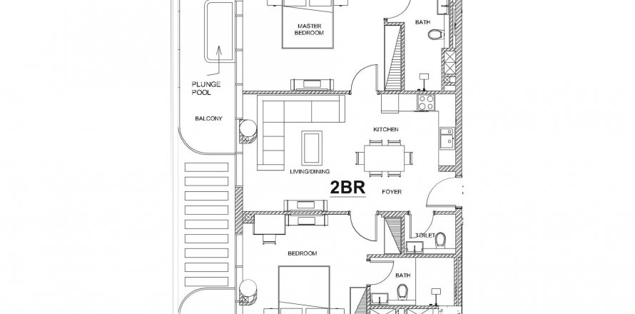
Byt půdorys «2BR», 2 ložnice v VILLA del BRUNELLO
640


5 100 000 AED
- AED
- EUR €
- USD $
- RUB ₽
- GBP £
Lokalita
- V blízkosti pláže
- V blízkosti veřejné hromadné dopravy
- V blízkosti obchodního centra
- V blízkosti škol
- V blízkosti školky
- Renomovaná čtvrť
- V blízkosti mezinárodních škol
- Skvělá lokalita
- Moře v blízkosti
- V blízkosti metra
- V blízkosti restaurací
- Výhled na moře
- Výhled na město
- Výhled do parku/na zahradu
- Nádherný výhled
- Výhled na společné prostory
Příslušenství
- Přímá linka na bezpečnostní službu
- Alarmový systém
- Panoramatická okna
- Balkon
- Terasa
- TV
- Internet
- Vybavené
- Dokončeno
- Obnovený interiér
- Luxusní nemovitosti
- Prémiová třída
- Nové developerské projekty
- Tekoucí voda
- Elektřina
- Příjezdová cesta na pozemek
Vnitřní příslušenství
- Restaurace
- Kavárna
- Bar s vodními dýmkami
- Vstupní hala v budově
- Odpočinková zóna
- Fitness centrum
- Soukromá tělocvična
- Výtah
Venkovní příslušenství
- Kamerový systém
- Bezpečnostní služba
- Dětské hřiště
- Dětský bazén
- Udržovaná zahrada
- Upravované zelené plochy
- Čerstvý mořský vítr
- Společenská a obchodní vybavenost
- Společenská zahrada
- Parkoviště
- Promenáda s občanskou vybaveností
- Lavičky
- Kvalitní zařízení
- Plavecký bazén
- Obchod
- Supermarket
Apartments with this layout
Třídit podle
-
Pokoje: 3Ložnice: 2Koupelny: 2Obytné plochy: 121 m²Vzdálenost od moře: 350 m
Kontaktovat prodejce
MěstoDubai
TypByt
Ložnice2
Obytné plochy121.0 m²
- m²
- čtverečních stop
k moři350 m
Do centra11 km
Datum dokončeníIV Čtvrtletí, 2027
Cena dohodou
- Cena dohodou
- za m²
5 100 000 AED
- AED
- EUR €
- USD $
- RUB ₽
- GBP £

