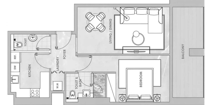
Floor plan «TYPE 1BR», 1 bedroom, in Amazonia
758


1 370 000 AED
- AED
- EUR €
- USD $
- RUB ₽
- GBP £
Sosyal alanlar
- Toplu taşımaya yakın
- Alışveriş merkezlerine yakın
- Okula yakın
- Elit semti
- Ekoloji açısından temiz hava bölgesi
- Mükemmel konumda ev
- Panoramik manzarası
- Güzel manzara
- Site manzarası
Daire içi özellikleri
- Güvenlik hizmeti ile doğrudan bağlantı
- Alarm sistemi
- Panoramik camlar
- Balkon
- İnternet
- Uydu TV
- Tüm beyaz eşya
- Terasta mangal
- Beyaz eşya dahil
- Eşyalı
- Yer kaplaması mevcuttur
- İnce işler tamamlanmış
- Yenilenmiş iç mekan
- Premium sınıf
- Su tesisatı döşendi
- Elektrik bağlantısı yapıldı
- Doğal gaz bağlantısı yapıldı
- Konuta doğru giden yol yapıldı
- Yapı ruhsatı
Bina Dışı Özellikleri
- Peyzaj ve yeşil alan
- Ulaşımda erişilebilirlik
- Sosyal ve ticari amaçlı yapılar, sosyal altyapı alanları
- Arka avlu
- Evcil hayvanlar girebilir
- Yüzme havuzu
Bu kat planına sahip daireler
Sıralama
-
Oda sayısı: 2Yatak odası: 1Banyo: 1Brüt Alan: 75.99 metrekareDenize Yakınlık: 150 m
Satıcıyla iletişime geç
ŞehirDubai
BölgeAl Jaddaf
TipDaire
Yatak odası1
Brüt Alan75.99 metrekare
- metrekare
- fit kare
Denize150 m
Merkeze7 km
Teslim tarihiIV çeyrek, 2026
Fiyat
- Fiyat
- metre kare fiyatı
1 370 000 AED
- AED
- EUR €
- USD $
- RUB ₽
- GBP £

