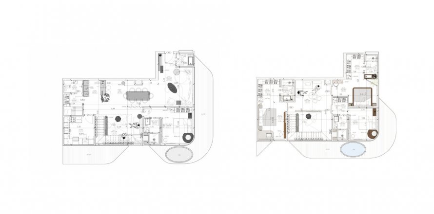
Floor plan «4BR», 4 bedrooms, in ARYA Residences
630


8 346 944 AED
- AED
- EUR €
- USD $
- RUB ₽
- GBP £
Emplacement
- Près de la plage
- Près de transport en commun
- Près des centres commerciaux
- Près de l'aéroport
- Près de l' école
- Près de l'école d'équitation
- Emplacement idéal
- près de l'école
- Près de la mer
- à proximité du métro
- Près des restaurants
- Près de l'hôpital
- Près de la Mosquée
- Vue sur la mer
- Vue sur la piscine
- Vue sur la ville
- Vue sur le parc /sur le jardin
- Belle vue
Caractéristiques
- Balcon
- Meublé
- Piscine privée
- Sauna
- En rénovation
Installations intérieures
- Idéale pour les enfants
- Repas dans le bâtiment
- Lobby dans le bâtiment
- Cinéma
- Sauna
- Centre de SPA
- Salle de fitness
- Salle de Pilates et de Yoga
- Gym privée
- Ascenseur
- Parking couvert
Caractéristiques extérieures
- Vidéo-surveillance
- Sécurité
- Terrain de jeux pour enfants
- Piscine pour enfants
- Jardin paysagé
- Espace vert aménagé
- Installations sociales et commerciales
- Concierge
- Piscine
- Terrain de sport
Appartements avec cet agencement
Trier par
Contacter le vendeur
VilleDubai
QuartierDeira
TypeDuplex
Chambres4
Espace de vie284.05 m²
- m²
- pi2
de la mer300 m
du centre15 km
Date d'achèvementIV quartier, 2027
Le coût total
- Le coût total
- Prix pour m²
8 346 944 AED
- AED
- EUR €
- USD $
- RUB ₽
- GBP £